array(60) {
["group"]=>
string(4) "land"
["p19"]=>
string(3) "田"
["p21"]=>
string(21) "第二種住居地域"
["p22"]=>
string(2) "60"
["p39"]=>
NULL
["p90"]=>
int(200)
["p24_25"]=>
string(3) " "
["p45_46"]=>
string(3) " "
["p47_48"]=>
string(3) " "
["p49_50"]=>
string(3) " "
["p26_27"]=>
string(14) "東 約16.0m"
["p51_52"]=>
string(3) " "
["p53_54"]=>
string(3) " "
["p55_56"]=>
string(3) " "
["p107"]=>
NULL
["id"]=>
int(33486)
["private"]=>
int(0)
["item_type_id"]=>
int(5)
["updated_at"]=>
string(17) "2026年02月19日"
["p1"]=>
string(10) "E260218575"
["p12"]=>
string(62) "岐阜県土岐市妻木町480-2 付近 38街区2-2画地 "
["p119"]=>
string(0) ""
["p120"]=>
string(9) "岐阜県"
["p121"]=>
string(9) "土岐市"
["p122"]=>
string(9) "妻木町"
["p123"]=>
string(34) "480-2 付近 38街区2-2画地"
["p124"]=>
NULL
["p23"]=>
string(22) "バス停 妻木神宮"
["p91"]=>
int(400)
["p70"]=>
NULL
["p16"]=>
string(15) "妻木小学校"
["p88"]=>
int(1110)
["p44"]=>
string(15) "西陵中学校"
["p89"]=>
int(2270)
["p17"]=>
string(12) "現状渡し"
["p18"]=>
NULL
["p28"]=>
string(9) "前面有"
["p29"]=>
string(22) "下水道(前面有)"
["p3"]=>
string(3) "882"
["p7"]=>
string(6) "247.00"
["p66"]=>
string(5) "74.72"
["p5"]=>
NULL
["p13"]=>
NULL
["p31"]=>
NULL
["p2"]=>
NULL
["p30"]=>
string(3) "無"
["p37"]=>
string(126) "土岐妻木南部土地区画整理仮換地
建設時、土地区画整理法第76条申請要
換地処分後に本登記"
["p38"]=>
string(6) "仲介"
["p71"]=>
string(18) "35.302097828409000"
["p72"]=>
string(19) "137.191989035990000"
["p94"]=>
array(3) {
[0]=>
array(26) {
["id"]=>
int(364)
["kws"]=>
NULL
["cat_id"]=>
int(356)
["type"]=>
string(12) "こだわり"
["pref"]=>
NULL
["lv1"]=>
string(1) "5"
["lv2"]=>
string(26) "小学校徒歩15分圏内"
["lv3"]=>
NULL
["lv4"]=>
NULL
["lv5"]=>
NULL
["rank1"]=>
NULL
["rank2"]=>
NULL
["rank3"]=>
NULL
["rank4"]=>
NULL
["rank5"]=>
NULL
["private_pdf_flg"]=>
int(1)
["gifunavi_view_flg"]=>
NULL
["fdx_view_flg"]=>
NULL
["search_view_flg"]=>
NULL
["note"]=>
NULL
["created_user_id"]=>
NULL
["created_at"]=>
NULL
["updated_user_id"]=>
NULL
["updated_at"]=>
NULL
["deleted_user_id"]=>
NULL
["deleted_at"]=>
NULL
}
[1]=>
array(26) {
["id"]=>
int(367)
["kws"]=>
NULL
["cat_id"]=>
int(356)
["type"]=>
string(12) "こだわり"
["pref"]=>
NULL
["lv1"]=>
string(1) "5"
["lv2"]=>
string(26) "前面道路幅員4m以上"
["lv3"]=>
NULL
["lv4"]=>
NULL
["lv5"]=>
NULL
["rank1"]=>
NULL
["rank2"]=>
NULL
["rank3"]=>
NULL
["rank4"]=>
NULL
["rank5"]=>
NULL
["private_pdf_flg"]=>
int(1)
["gifunavi_view_flg"]=>
NULL
["fdx_view_flg"]=>
NULL
["search_view_flg"]=>
NULL
["note"]=>
NULL
["created_user_id"]=>
NULL
["created_at"]=>
NULL
["updated_user_id"]=>
NULL
["updated_at"]=>
NULL
["deleted_user_id"]=>
NULL
["deleted_at"]=>
NULL
}
[2]=>
array(26) {
["id"]=>
int(368)
["kws"]=>
NULL
["cat_id"]=>
int(356)
["type"]=>
string(12) "こだわり"
["pref"]=>
NULL
["lv1"]=>
string(1) "5"
["lv2"]=>
string(26) "前面道路幅員6m以上"
["lv3"]=>
NULL
["lv4"]=>
NULL
["lv5"]=>
NULL
["rank1"]=>
NULL
["rank2"]=>
NULL
["rank3"]=>
NULL
["rank4"]=>
NULL
["rank5"]=>
NULL
["private_pdf_flg"]=>
int(1)
["gifunavi_view_flg"]=>
NULL
["fdx_view_flg"]=>
NULL
["search_view_flg"]=>
NULL
["note"]=>
NULL
["created_user_id"]=>
NULL
["created_at"]=>
NULL
["updated_user_id"]=>
NULL
["updated_at"]=>
NULL
["deleted_user_id"]=>
NULL
["deleted_at"]=>
NULL
}
}
["p135"]=>
NULL
["map"]=>
NULL
["left_img_file"]=>
string(91) "https://www.mitaka-mng.net/data/items/33486/ecf3d7b6d7a828406e833e10e32e0c44-1771473798.jpg"
["layout_img_file"]=>
NULL
["images"]=>
array(1) {
["right_lt_img_file"]=>
string(91) "https://www.mitaka-mng.net/data/items/33486/b44d38da62ad602e924005fdec9935ac-1771473824.jpg"
}
["areas"]=>
array(6) {
["p36"]=>
array(3) {
["type"]=>
string(12) "スーパー"
["name"]=>
string(21) "バロー南土岐店"
["m"]=>
int(2301)
}
["p112"]=>
array(3) {
["type"]=>
string(12) "コンビニ"
["name"]=>
string(39) "ファミリーマート土岐平成店"
["m"]=>
int(2154)
}
["p113"]=>
array(3) {
["type"]=>
string(6) "薬局"
["name"]=>
string(36) "クスリのアオキ妻木平成店"
["m"]=>
int(1851)
}
["p114"]=>
array(3) {
["type"]=>
string(9) "幼稚園"
["name"]=>
string(30) "土岐市立妻木こども園"
["m"]=>
int(1352)
}
["p115"]=>
array(3) {
["type"]=>
string(6) "病院"
["name"]=>
string(12) "高井病院"
["m"]=>
int(1709)
}
["p116"]=>
array(3) {
["type"]=>
NULL
["name"]=>
NULL
["m"]=>
NULL
}
}
["recommends"]=>
array(8) {
[0]=>
array(15) {
["id"]=>
int(21167)
["item_type_id"]=>
int(5)
["item_view_type"]=>
string(9) "非公開"
["p12"]=>
string(28) "岐阜県土岐市妻木町 "
["p16"]=>
NULL
["p23"]=>
string(25) "バス停 妻木公民館"
["pr"]=>
bool(false)
["p3f"]=>
string(62) "
350万円"
["p66f"]=>
string(8) "74.72坪"
["p7f"]=>
string(6) "247㎡"
["p134f"]=>
string(6) "未定"
["p86f"]=>
string(6) "未定"
["right_lt_img_file"]=>
string(91) "https://www.mitaka-mng.net/data/items/21167/c3661ba48aba329cad7a901689e5056f-1708926587.jpg"
["left_img_file"]=>
string(91) "https://www.mitaka-mng.net/data/items/21167/e91e970cb75962f4193f2cca67733aa9-1708926584.jpg"
["group"]=>
string(6) "土地"
}
[1]=>
array(15) {
["id"]=>
int(21006)
["item_type_id"]=>
int(5)
["item_view_type"]=>
string(6) "店舗"
["p12"]=>
string(42) "岐阜県土岐市下石町655-7 付近 "
["p16"]=>
string(15) "下石小学校"
["p23"]=>
string(19) "バス停 裏山口"
["pr"]=>
bool(false)
["p3f"]=>
string(62) "
350万円"
["p66f"]=>
string(8) "74.72坪"
["p7f"]=>
string(6) "247㎡"
["p134f"]=>
string(6) "未定"
["p86f"]=>
string(6) "未定"
["right_lt_img_file"]=>
string(91) "https://www.mitaka-mng.net/data/items/21006/f0f34279a4a295ac71f8439ab6c1b96a-1708226592.jpg"
["left_img_file"]=>
string(91) "https://www.mitaka-mng.net/data/items/21006/27051e46bdea949e10512895a3ad960c-1708226587.jpg"
["group"]=>
string(6) "土地"
}
[2]=>
array(15) {
["id"]=>
int(21008)
["item_type_id"]=>
int(5)
["item_view_type"]=>
string(9) "非公開"
["p12"]=>
string(44) "岐阜県土岐市下石町2388-89 付近 "
["p16"]=>
string(15) "下石小学校"
["p23"]=>
string(22) "バス停 大平団地"
["pr"]=>
bool(false)
["p3f"]=>
string(62) "
384万円"
["p66f"]=>
string(8) "74.72坪"
["p7f"]=>
string(6) "247㎡"
["p134f"]=>
string(6) "未定"
["p86f"]=>
string(6) "未定"
["right_lt_img_file"]=>
string(91) "https://www.mitaka-mng.net/data/items/21008/6592517f6ac1a2fae37bc2be6d96c97d-1708226985.jpg"
["left_img_file"]=>
string(91) "https://www.mitaka-mng.net/data/items/21008/ea198baecb0ba5a51a699787a831907a-1708226992.jpg"
["group"]=>
string(6) "土地"
}
[3]=>
array(15) {
["id"]=>
int(21012)
["item_type_id"]=>
int(5)
["item_view_type"]=>
string(6) "会員"
["p12"]=>
string(44) "岐阜県土岐市下石町304-179 付近 "
["p16"]=>
string(15) "下石小学校"
["p23"]=>
string(25) "バス停 昭和農園前"
["pr"]=>
bool(false)
["p3f"]=>
string(62) "
690万円"
["p66f"]=>
string(8) "74.72坪"
["p7f"]=>
string(6) "247㎡"
["p134f"]=>
string(6) "未定"
["p86f"]=>
string(6) "未定"
["right_lt_img_file"]=>
string(91) "https://www.mitaka-mng.net/data/items/21012/03512ad8e77a98ef1bdad933d546143b-1708228657.jpg"
["left_img_file"]=>
string(91) "https://www.mitaka-mng.net/data/items/21012/816415bc28a8c62bcb840561a2af9b1d-1708228654.jpg"
["group"]=>
string(6) "土地"
}
[4]=>
array(15) {
["id"]=>
int(21020)
["item_type_id"]=>
int(5)
["item_view_type"]=>
string(6) "会員"
["p12"]=>
string(52) "岐阜県土岐市下石陶史台3丁目43 付近 "
["p16"]=>
string(15) "下石小学校"
["p23"]=>
string(25) "バス停 山神温泉口"
["pr"]=>
bool(false)
["p3f"]=>
string(62) "
480万円"
["p66f"]=>
string(8) "74.72坪"
["p7f"]=>
string(6) "247㎡"
["p134f"]=>
string(6) "未定"
["p86f"]=>
string(6) "未定"
["right_lt_img_file"]=>
string(91) "https://www.mitaka-mng.net/data/items/21020/717a85e0d170499f0468c14e74cd054e-1708231663.jpg"
["left_img_file"]=>
string(91) "https://www.mitaka-mng.net/data/items/21020/8c66746cf1e860a203e29630ea973a05-1708231654.jpg"
["group"]=>
string(6) "土地"
}
[5]=>
array(15) {
["id"]=>
int(21021)
["item_type_id"]=>
int(5)
["item_view_type"]=>
string(6) "会員"
["p12"]=>
string(52) "岐阜県土岐市下石陶史台5丁目43 付近 "
["p16"]=>
string(15) "下石小学校"
["p23"]=>
string(25) "バス停 山神温泉口"
["pr"]=>
bool(false)
["p3f"]=>
string(62) "
480万円"
["p66f"]=>
string(8) "74.72坪"
["p7f"]=>
string(6) "247㎡"
["p134f"]=>
string(6) "未定"
["p86f"]=>
string(6) "未定"
["right_lt_img_file"]=>
string(91) "https://www.mitaka-mng.net/data/items/21021/b2ad937a5516cac3eb3b212cfbba2f09-1708231776.jpg"
["left_img_file"]=>
string(91) "https://www.mitaka-mng.net/data/items/21021/34b012c29c77dfb8cd3cb605d3faf025-1708231774.jpg"
["group"]=>
string(6) "土地"
}
[6]=>
array(15) {
["id"]=>
int(21022)
["item_type_id"]=>
int(5)
["item_view_type"]=>
string(6) "会員"
["p12"]=>
string(52) "岐阜県土岐市下石陶史台5丁目34 付近 "
["p16"]=>
string(15) "下石小学校"
["p23"]=>
string(25) "バス停 山神温泉口"
["pr"]=>
bool(false)
["p3f"]=>
string(62) "
480万円"
["p66f"]=>
string(8) "74.72坪"
["p7f"]=>
string(6) "247㎡"
["p134f"]=>
string(6) "未定"
["p86f"]=>
string(6) "未定"
["right_lt_img_file"]=>
string(91) "https://www.mitaka-mng.net/data/items/21022/b92b034fb79bdd286eeae4ba4b6aed4f-1708232002.jpg"
["left_img_file"]=>
string(57) "https://www.mitaka-mng.net/data/img/no_gifunavi_image.png"
["group"]=>
string(6) "土地"
}
[7]=>
array(15) {
["id"]=>
int(21025)
["item_type_id"]=>
int(5)
["item_view_type"]=>
string(6) "店舗"
["p12"]=>
string(52) "岐阜県土岐市下石陶史台5丁目91 付近 "
["p16"]=>
string(15) "下石小学校"
["p23"]=>
string(25) "バス停 山神温泉口"
["pr"]=>
bool(false)
["p3f"]=>
string(62) "
650万円"
["p66f"]=>
string(8) "74.72坪"
["p7f"]=>
string(6) "247㎡"
["p134f"]=>
string(6) "未定"
["p86f"]=>
string(6) "未定"
["right_lt_img_file"]=>
string(91) "https://www.mitaka-mng.net/data/items/21025/b7335e849c9ee8e4eb225d0275ce71f5-1708232758.jpg"
["left_img_file"]=>
string(91) "https://www.mitaka-mng.net/data/items/21025/da588e0041a9ce3d212d452930733467-1708232754.jpg"
["group"]=>
string(6) "土地"
}
}
["p86"]=>
NULL
["p62"]=>
string(9) "募集中"
}

物件検索に戻る

検索条件の変更
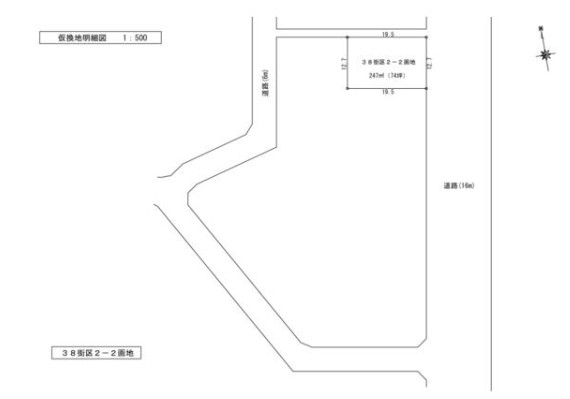
岐阜県土岐市妻木町480-2 付近 38街区2-2画地
882万円
建築条件
なし
所在地
岐阜県土岐市妻木町480-2 付近 38街区2-2画地
土地面積
247.00㎡ (74.72坪)
学校区
妻木小学校 1110m /
西陵中学校 2270m
交通
バス停 妻木神宮 400m
土地図面
小学校徒歩15分圏内
前面道路幅員4m以上
前面道路幅員6m以上
物件詳細
所在地
岐阜県土岐市妻木町480-2 付近 38街区2-2画地
交通
バス停 妻木神宮 400m
価格
882万円
他費用
-
土地面積
247.00㎡ (74.72坪)
接道状況
幅員状況
東 約16.0m
都市計画
-
用途地域
第二種住居地域
建蔽率
60%
容積率
200%
地目
田
法令制限
-
上水道
前面有
排水
下水道(前面有)
都市ガス
無
備考
土岐妻木南部土地区画整理仮換地
建設時、土地区画整理法第76条申請要
換地処分後に本登記
更新日
2026年02月19日
取引形態
仲介
物件番号
E260218575
物件場所
周辺施設
周辺のおすすめ物件
来店のご予約

2560.54万円

建物専有面積 109.35㎡ (259.35坪)

岐阜市下奈良3丁目20-18 D区画

広島市「入川バス停」徒歩7分

市橋 小学校
会員登録でぼかしを外す

2560.54万円

建物専有面積 109.35㎡ (259.35坪)

岐阜市下奈良3丁目20-18 D区画

広島市「入川バス停」徒歩7分

市橋 小学校
会員登録でぼかしを外す

2560.54万円

建物専有面積 109.35㎡ (259.35坪)

岐阜市下奈良3丁目20-18 D区画

広島市「入川バス停」徒歩7分

市橋 小学校
会員登録でぼかしを外す

2560.54万円

建物専有面積 109.35㎡ (259.35坪)

岐阜市下奈良3丁目20-18 D区画

広島市「入川バス停」徒歩7分

市橋 小学校
会員登録でぼかしを外す

2560.54万円

建物専有面積 109.35㎡ (259.35坪)

岐阜市下奈良3丁目20-18 D区画

広島市「入川バス停」徒歩7分

市橋 小学校
来店のご予約

2560.54万円

建物専有面積 109.35㎡ (259.35坪)

岐阜市下奈良3丁目20-18 D区画

広島市「入川バス停」徒歩7分

市橋 小学校