array(60) {
["group"]=>
string(4) "land"
["p19"]=>
string(6) "宅地"
["p21"]=>
string(12) "商業地域"
["p22"]=>
string(2) "80"
["p39"]=>
NULL
["p90"]=>
int(500)
["p24_25"]=>
string(14) "西 約14.8m"
["p45_46"]=>
string(3) " "
["p47_48"]=>
string(3) " "
["p49_50"]=>
string(3) " "
["p26_27"]=>
string(13) "西 約9.0m"
["p51_52"]=>
string(3) " "
["p53_54"]=>
string(3) " "
["p55_56"]=>
string(3) " "
["p107"]=>
NULL
["id"]=>
int(28790)
["private"]=>
int(0)
["item_type_id"]=>
int(5)
["updated_at"]=>
string(17) "2026年02月27日"
["p1"]=>
string(10) "E250514178"
["p12"]=>
string(37) "岐阜県大垣市郭町東2丁目10 "
["p119"]=>
string(0) ""
["p120"]=>
string(9) "岐阜県"
["p121"]=>
string(9) "大垣市"
["p122"]=>
string(9) "郭町東"
["p123"]=>
string(9) "2丁目10"
["p124"]=>
NULL
["p23"]=>
string(25) "養老鉄道 北大垣駅"
["p91"]=>
NULL
["p70"]=>
int(9)
["p16"]=>
string(15) "興文小学校"
["p88"]=>
int(970)
["p44"]=>
string(15) "興文中学校"
["p89"]=>
int(1180)
["p17"]=>
string(12) "更地渡し"
["p18"]=>
NULL
["p28"]=>
string(9) "前面有"
["p29"]=>
string(22) "下水道(前面有)"
["p3"]=>
string(5) "4,000"
["p7"]=>
string(6) "300.61"
["p66"]=>
string(5) "90.93"
["p5"]=>
NULL
["p13"]=>
NULL
["p31"]=>
NULL
["p2"]=>
NULL
["p30"]=>
string(9) "前面有"
["p37"]=>
string(70) "現況:建物有
確定測量実施後引渡し
文化財保護法"
["p38"]=>
string(6) "仲介"
["p71"]=>
string(18) "35.361428500000000"
["p72"]=>
string(19) "136.618270800000000"
["p94"]=>
array(6) {
[0]=>
array(26) {
["id"]=>
int(362)
["kws"]=>
NULL
["cat_id"]=>
int(356)
["type"]=>
string(12) "こだわり"
["pref"]=>
NULL
["lv1"]=>
string(1) "5"
["lv2"]=>
string(15) "間口10m以上"
["lv3"]=>
NULL
["lv4"]=>
NULL
["lv5"]=>
NULL
["rank1"]=>
NULL
["rank2"]=>
NULL
["rank3"]=>
NULL
["rank4"]=>
NULL
["rank5"]=>
NULL
["private_pdf_flg"]=>
NULL
["gifunavi_view_flg"]=>
NULL
["fdx_view_flg"]=>
NULL
["search_view_flg"]=>
NULL
["note"]=>
NULL
["created_user_id"]=>
NULL
["created_at"]=>
NULL
["updated_user_id"]=>
NULL
["updated_at"]=>
NULL
["deleted_user_id"]=>
NULL
["deleted_at"]=>
NULL
}
[1]=>
array(26) {
["id"]=>
int(364)
["kws"]=>
NULL
["cat_id"]=>
int(356)
["type"]=>
string(12) "こだわり"
["pref"]=>
NULL
["lv1"]=>
string(1) "5"
["lv2"]=>
string(26) "小学校徒歩15分圏内"
["lv3"]=>
NULL
["lv4"]=>
NULL
["lv5"]=>
NULL
["rank1"]=>
NULL
["rank2"]=>
NULL
["rank3"]=>
NULL
["rank4"]=>
NULL
["rank5"]=>
NULL
["private_pdf_flg"]=>
int(1)
["gifunavi_view_flg"]=>
NULL
["fdx_view_flg"]=>
NULL
["search_view_flg"]=>
NULL
["note"]=>
NULL
["created_user_id"]=>
NULL
["created_at"]=>
NULL
["updated_user_id"]=>
NULL
["updated_at"]=>
NULL
["deleted_user_id"]=>
NULL
["deleted_at"]=>
NULL
}
[2]=>
array(26) {
["id"]=>
int(365)
["kws"]=>
NULL
["cat_id"]=>
int(356)
["type"]=>
string(12) "こだわり"
["pref"]=>
NULL
["lv1"]=>
string(1) "5"
["lv2"]=>
string(23) "最寄り駅10分圏内"
["lv3"]=>
NULL
["lv4"]=>
NULL
["lv5"]=>
NULL
["rank1"]=>
NULL
["rank2"]=>
NULL
["rank3"]=>
NULL
["rank4"]=>
NULL
["rank5"]=>
NULL
["private_pdf_flg"]=>
int(1)
["gifunavi_view_flg"]=>
NULL
["fdx_view_flg"]=>
NULL
["search_view_flg"]=>
NULL
["note"]=>
NULL
["created_user_id"]=>
NULL
["created_at"]=>
NULL
["updated_user_id"]=>
NULL
["updated_at"]=>
NULL
["deleted_user_id"]=>
NULL
["deleted_at"]=>
NULL
}
[3]=>
array(26) {
["id"]=>
int(366)
["kws"]=>
NULL
["cat_id"]=>
int(356)
["type"]=>
string(12) "こだわり"
["pref"]=>
NULL
["lv1"]=>
string(1) "5"
["lv2"]=>
string(23) "最寄り駅15分圏内"
["lv3"]=>
NULL
["lv4"]=>
NULL
["lv5"]=>
NULL
["rank1"]=>
NULL
["rank2"]=>
NULL
["rank3"]=>
NULL
["rank4"]=>
NULL
["rank5"]=>
NULL
["private_pdf_flg"]=>
int(1)
["gifunavi_view_flg"]=>
NULL
["fdx_view_flg"]=>
NULL
["search_view_flg"]=>
NULL
["note"]=>
NULL
["created_user_id"]=>
NULL
["created_at"]=>
NULL
["updated_user_id"]=>
NULL
["updated_at"]=>
NULL
["deleted_user_id"]=>
NULL
["deleted_at"]=>
NULL
}
[4]=>
array(26) {
["id"]=>
int(367)
["kws"]=>
NULL
["cat_id"]=>
int(356)
["type"]=>
string(12) "こだわり"
["pref"]=>
NULL
["lv1"]=>
string(1) "5"
["lv2"]=>
string(26) "前面道路幅員4m以上"
["lv3"]=>
NULL
["lv4"]=>
NULL
["lv5"]=>
NULL
["rank1"]=>
NULL
["rank2"]=>
NULL
["rank3"]=>
NULL
["rank4"]=>
NULL
["rank5"]=>
NULL
["private_pdf_flg"]=>
int(1)
["gifunavi_view_flg"]=>
NULL
["fdx_view_flg"]=>
NULL
["search_view_flg"]=>
NULL
["note"]=>
NULL
["created_user_id"]=>
NULL
["created_at"]=>
NULL
["updated_user_id"]=>
NULL
["updated_at"]=>
NULL
["deleted_user_id"]=>
NULL
["deleted_at"]=>
NULL
}
[5]=>
array(26) {
["id"]=>
int(368)
["kws"]=>
NULL
["cat_id"]=>
int(356)
["type"]=>
string(12) "こだわり"
["pref"]=>
NULL
["lv1"]=>
string(1) "5"
["lv2"]=>
string(26) "前面道路幅員6m以上"
["lv3"]=>
NULL
["lv4"]=>
NULL
["lv5"]=>
NULL
["rank1"]=>
NULL
["rank2"]=>
NULL
["rank3"]=>
NULL
["rank4"]=>
NULL
["rank5"]=>
NULL
["private_pdf_flg"]=>
int(1)
["gifunavi_view_flg"]=>
NULL
["fdx_view_flg"]=>
NULL
["search_view_flg"]=>
NULL
["note"]=>
NULL
["created_user_id"]=>
NULL
["created_at"]=>
NULL
["updated_user_id"]=>
NULL
["updated_at"]=>
NULL
["deleted_user_id"]=>
NULL
["deleted_at"]=>
NULL
}
}
["p135"]=>
NULL
["map"]=>
NULL
["left_img_file"]=>
string(91) "https://www.mitaka-mng.net/data/items/28790/797a7ac02b0fa49c7940aeb5e7dfb1ce-1757727789.jpg"
["layout_img_file"]=>
NULL
["images"]=>
array(1) {
["right_lt_img_file"]=>
string(91) "https://www.mitaka-mng.net/data/items/28790/7bc4372d3ddbc7454a38b71654bb1974-1748481670.jpg"
}
["areas"]=>
array(6) {
["p36"]=>
array(3) {
["type"]=>
string(12) "スーパー"
["name"]=>
string(27) "スイトスクエア大垣"
["m"]=>
int(630)
}
["p112"]=>
array(3) {
["type"]=>
string(12) "コンビニ"
["name"]=>
string(43) "セブンイレブン大垣郭町3丁目店"
["m"]=>
int(414)
}
["p113"]=>
array(3) {
["type"]=>
string(6) "薬局"
["name"]=>
string(39) "クスリのアオキ大垣丸の内店"
["m"]=>
int(523)
}
["p114"]=>
array(3) {
["type"]=>
string(9) "幼稚園"
["name"]=>
string(15) "大垣幼稚園"
["m"]=>
int(589)
}
["p115"]=>
array(3) {
["type"]=>
string(6) "病院"
["name"]=>
string(12) "名和病院"
["m"]=>
int(647)
}
["p116"]=>
array(3) {
["type"]=>
NULL
["name"]=>
NULL
["m"]=>
NULL
}
}
["recommends"]=>
array(8) {
[0]=>
array(15) {
["id"]=>
int(32041)
["item_type_id"]=>
int(5)
["item_view_type"]=>
string(6) "店舗"
["p12"]=>
string(25) "岐阜県瑞穂市稲里 "
["p16"]=>
NULL
["p23"]=>
string(31) "バス停 灘新田公民館前"
["pr"]=>
bool(false)
["p3f"]=>
string(62) "
100万円"
["p66f"]=>
string(8) "90.93坪"
["p7f"]=>
string(9) "300.61㎡"
["p134f"]=>
string(6) "未定"
["p86f"]=>
string(6) "未定"
["right_lt_img_file"]=>
string(57) "https://www.mitaka-mng.net/data/img/no_gifunavi_image.png"
["left_img_file"]=>
string(57) "https://www.mitaka-mng.net/data/img/no_gifunavi_image.png"
["group"]=>
string(6) "土地"
}
[1]=>
array(15) {
["id"]=>
int(32835)
["item_type_id"]=>
int(5)
["item_view_type"]=>
string(6) "店舗"
["p12"]=>
string(34) "岐阜県羽島市竹鼻町狐穴 "
["p16"]=>
NULL
["p23"]=>
NULL
["pr"]=>
bool(false)
["p3f"]=>
string(64) "
2,997万円"
["p66f"]=>
string(8) "90.93坪"
["p7f"]=>
string(9) "300.61㎡"
["p134f"]=>
string(6) "未定"
["p86f"]=>
string(6) "未定"
["right_lt_img_file"]=>
string(57) "https://www.mitaka-mng.net/data/img/no_gifunavi_image.png"
["left_img_file"]=>
string(57) "https://www.mitaka-mng.net/data/img/no_gifunavi_image.png"
["group"]=>
string(6) "土地"
}
[2]=>
array(15) {
["id"]=>
int(33227)
["item_type_id"]=>
int(5)
["item_view_type"]=>
string(6) "店舗"
["p12"]=>
string(28) "岐阜県大垣市木戸町 "
["p16"]=>
NULL
["p23"]=>
string(27) "JR東海道本線 大垣駅"
["pr"]=>
bool(false)
["p3f"]=>
string(64) "
1,975万円"
["p66f"]=>
string(8) "90.93坪"
["p7f"]=>
string(9) "300.61㎡"
["p134f"]=>
string(6) "未定"
["p86f"]=>
string(6) "未定"
["right_lt_img_file"]=>
string(57) "https://www.mitaka-mng.net/data/img/no_gifunavi_image.png"
["left_img_file"]=>
string(91) "https://www.mitaka-mng.net/data/items/33227/651fb4e8214f28743c9496b57e5aa180-1769993915.jpg"
["group"]=>
string(6) "土地"
}
[3]=>
array(15) {
["id"]=>
int(28612)
["item_type_id"]=>
int(5)
["item_view_type"]=>
string(6) "会員"
["p12"]=>
string(31) "岐阜県本巣市見延1386-2 "
["p16"]=>
string(15) "一色小学校"
["p23"]=>
string(31) "樽見鉄道 モレラ岐阜駅"
["pr"]=>
bool(false)
["p3f"]=>
string(62) "
870万円"
["p66f"]=>
string(8) "90.93坪"
["p7f"]=>
string(9) "300.61㎡"
["p134f"]=>
string(6) "未定"
["p86f"]=>
string(6) "未定"
["right_lt_img_file"]=>
string(91) "https://www.mitaka-mng.net/data/items/28612/7782df714871cc083919abbe9a080884-1747453559.jpg"
["left_img_file"]=>
string(91) "https://www.mitaka-mng.net/data/items/28612/2eb0eebf94e02b640c44ffefa16a13c3-1747453543.jpg"
["group"]=>
string(6) "土地"
}
[4]=>
array(15) {
["id"]=>
int(717)
["item_type_id"]=>
int(5)
["item_view_type"]=>
string(6) "店舗"
["p12"]=>
string(50) "岐阜県岐阜市東改田字鶴田36-2 付近 "
["p16"]=>
string(15) "七郷小学校"
["p23"]=>
string(25) "バス停 多田精機前"
["pr"]=>
bool(false)
["p3f"]=>
string(62) "
580万円"
["p66f"]=>
string(8) "90.93坪"
["p7f"]=>
string(9) "300.61㎡"
["p134f"]=>
string(6) "未定"
["p86f"]=>
string(6) "未定"
["right_lt_img_file"]=>
string(89) "https://www.mitaka-mng.net/data/items/717/299a3a1485e69fb4d3b84ed51714323b-1769653613.jpg"
["left_img_file"]=>
string(57) "https://www.mitaka-mng.net/data/img/no_gifunavi_image.png"
["group"]=>
string(6) "土地"
}
[5]=>
array(15) {
["id"]=>
int(720)
["item_type_id"]=>
int(5)
["item_view_type"]=>
string(6) "会員"
["p12"]=>
string(50) "岐阜県岐阜市西改田上の町71-2 付近 "
["p16"]=>
string(15) "七郷小学校"
["p23"]=>
string(23) "バス停 芝原6丁目"
["pr"]=>
bool(false)
["p3f"]=>
string(64) "
1,000万円"
["p66f"]=>
string(8) "90.93坪"
["p7f"]=>
string(9) "300.61㎡"
["p134f"]=>
string(6) "未定"
["p86f"]=>
string(6) "未定"
["right_lt_img_file"]=>
string(89) "https://www.mitaka-mng.net/data/items/720/9a84869473f0d2eb31d56b55b2eb419f-1711501498.jpg"
["left_img_file"]=>
string(89) "https://www.mitaka-mng.net/data/items/720/7d1db83ac2ebcc3ebd1ff979002b9091-1711501422.jpg"
["group"]=>
string(6) "土地"
}
[6]=>
array(15) {
["id"]=>
int(1243)
["item_type_id"]=>
int(5)
["item_view_type"]=>
string(6) "店舗"
["p12"]=>
string(47) "岐阜県岐阜市西改田七石31-1 付近 "
["p16"]=>
string(15) "七郷小学校"
["p23"]=>
string(19) "バス停 堀之内"
["pr"]=>
bool(false)
["p3f"]=>
string(64) "
1,030万円"
["p66f"]=>
string(8) "90.93坪"
["p7f"]=>
string(9) "300.61㎡"
["p134f"]=>
string(6) "未定"
["p86f"]=>
string(6) "未定"
["right_lt_img_file"]=>
string(90) "https://www.mitaka-mng.net/data/items/1243/ac5a40b8036616dce35cd04a4e4e3097-1691115583.jpg"
["left_img_file"]=>
string(90) "https://www.mitaka-mng.net/data/items/1243/615e4fc502650056448774ce8d95ecce-1652343094.jpg"
["group"]=>
string(6) "土地"
}
[7]=>
array(15) {
["id"]=>
int(2029)
["item_type_id"]=>
int(5)
["item_view_type"]=>
string(6) "店舗"
["p12"]=>
string(37) "岐阜県岐阜市川部6丁目18-15 "
["p16"]=>
string(15) "七郷小学校"
["p23"]=>
string(28) "バス停 上尻毛・川部"
["pr"]=>
bool(false)
["p3f"]=>
string(62) "
600万円"
["p66f"]=>
string(8) "90.93坪"
["p7f"]=>
string(9) "300.61㎡"
["p134f"]=>
string(6) "未定"
["p86f"]=>
string(6) "未定"
["right_lt_img_file"]=>
string(90) "https://www.mitaka-mng.net/data/items/2029/212173cb55392eae0e12da7431cf048d-1634605291.png"
["left_img_file"]=>
string(57) "https://www.mitaka-mng.net/data/img/no_gifunavi_image.png"
["group"]=>
string(6) "土地"
}
}
["p86"]=>
NULL
["p62"]=>
string(9) "募集中"
}

物件検索に戻る

検索条件の変更
建築条件
なし
所在地
岐阜県大垣市郭町東2丁目10
土地面積
300.61㎡ (90.93坪)
学校区
興文小学校 970m /
興文中学校 1180m
交通
養老鉄道 北大垣駅 徒歩9分
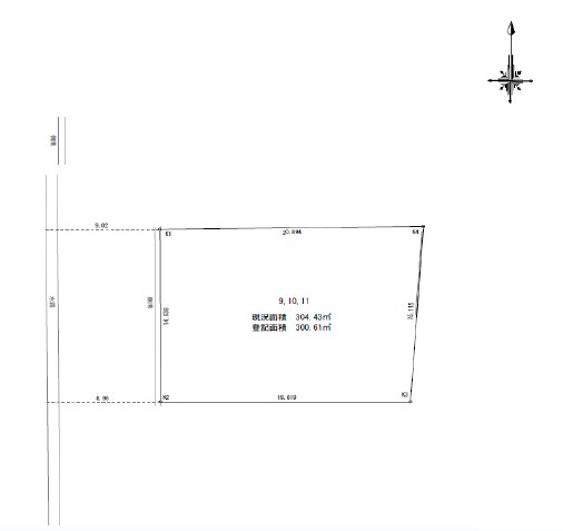
土地図面
間口10m以上
小学校徒歩15分圏内
最寄り駅10分圏内
最寄り駅15分圏内
前面道路幅員4m以上
前面道路幅員6m以上
物件詳細
所在地
岐阜県大垣市郭町東2丁目10
交通
養老鉄道 北大垣駅 徒歩9分
価格
4,000万円
他費用
-
土地面積
300.61㎡ (90.93坪)
接道状況
西 約14.8m
幅員状況
西 約9.0m
都市計画
-
用途地域
商業地域
建蔽率
80%
容積率
500%
地目
宅地
法令制限
-
上水道
前面有
排水
下水道(前面有)
都市ガス
前面有
備考
現況:建物有
確定測量実施後引渡し
文化財保護法
更新日
2026年02月27日
取引形態
仲介
物件番号
E250514178
物件場所
周辺施設
周辺のおすすめ物件
来店のご予約

2560.54万円

建物専有面積 109.35㎡ (259.35坪)

岐阜市下奈良3丁目20-18 D区画

広島市「入川バス停」徒歩7分

市橋 小学校
来店のご予約

2560.54万円

建物専有面積 109.35㎡ (259.35坪)

岐阜市下奈良3丁目20-18 D区画

広島市「入川バス停」徒歩7分

市橋 小学校
来店のご予約

2560.54万円

建物専有面積 109.35㎡ (259.35坪)

岐阜市下奈良3丁目20-18 D区画

広島市「入川バス停」徒歩7分

市橋 小学校
会員登録でぼかしを外す

2560.54万円

建物専有面積 109.35㎡ (259.35坪)

岐阜市下奈良3丁目20-18 D区画

広島市「入川バス停」徒歩7分

市橋 小学校
来店のご予約

2560.54万円

建物専有面積 109.35㎡ (259.35坪)

岐阜市下奈良3丁目20-18 D区画

広島市「入川バス停」徒歩7分

市橋 小学校
会員登録でぼかしを外す

2560.54万円

建物専有面積 109.35㎡ (259.35坪)

岐阜市下奈良3丁目20-18 D区画

広島市「入川バス停」徒歩7分

市橋 小学校
来店のご予約

2560.54万円

建物専有面積 109.35㎡ (259.35坪)

岐阜市下奈良3丁目20-18 D区画

広島市「入川バス停」徒歩7分

市橋 小学校
来店のご予約

2560.54万円

建物専有面積 109.35㎡ (259.35坪)

岐阜市下奈良3丁目20-18 D区画

広島市「入川バス停」徒歩7分

市橋 小学校